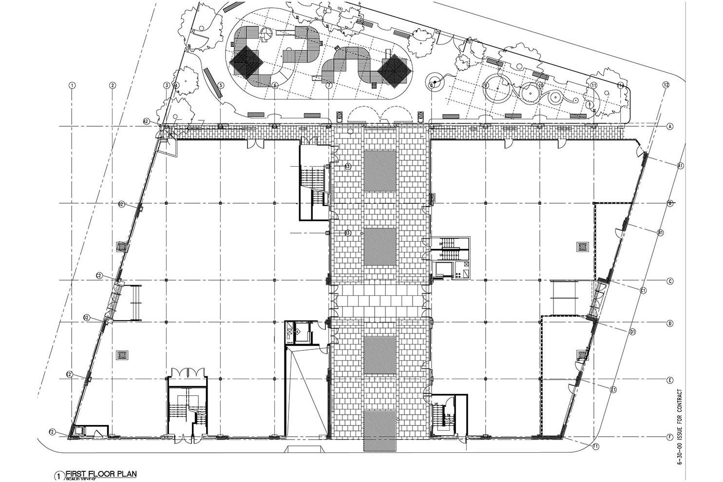
East Broadway / Mixed Use Building
75 East Broadway, New York
Square Feet: 46,000 sf
Completion Date: April, 2002
Project Architect: Lin-Lin Lin
Project Designer: Peter Poon
The site is located in the Lower East Side / Chinatown, under the Manhattan Bridge. The development is bisected by two existing masonry piers supporting the bridge, and is bordered by the Sarah Loeb Playground on the west side. A major promenade is proposed to connect the site features together: the playground acts as a front plaza, welcoming the pedestrians into an outdoor plaza under the bridge and between the proposed buildings, creating an intermediate zone where cultural activities can take place within a historical setting. The total development encompasses 46,000 g.s.f..
